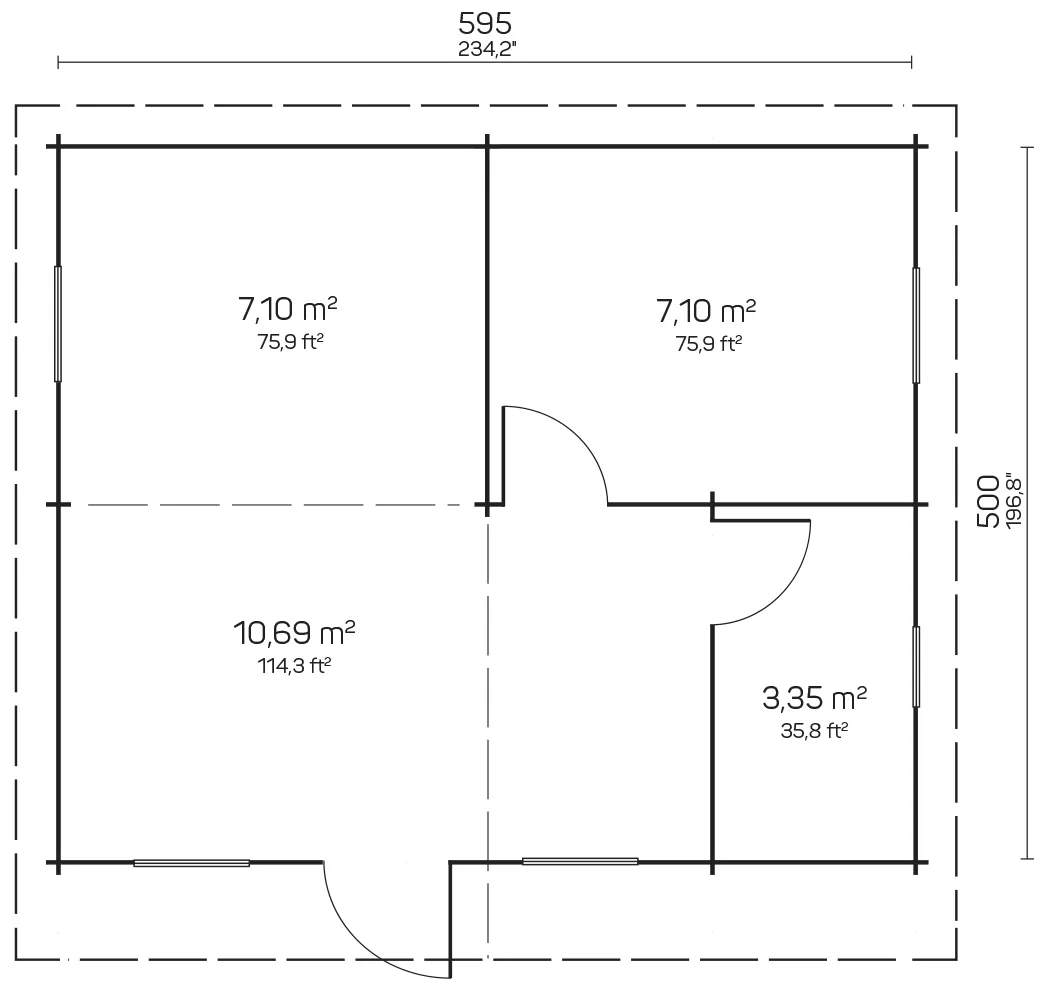
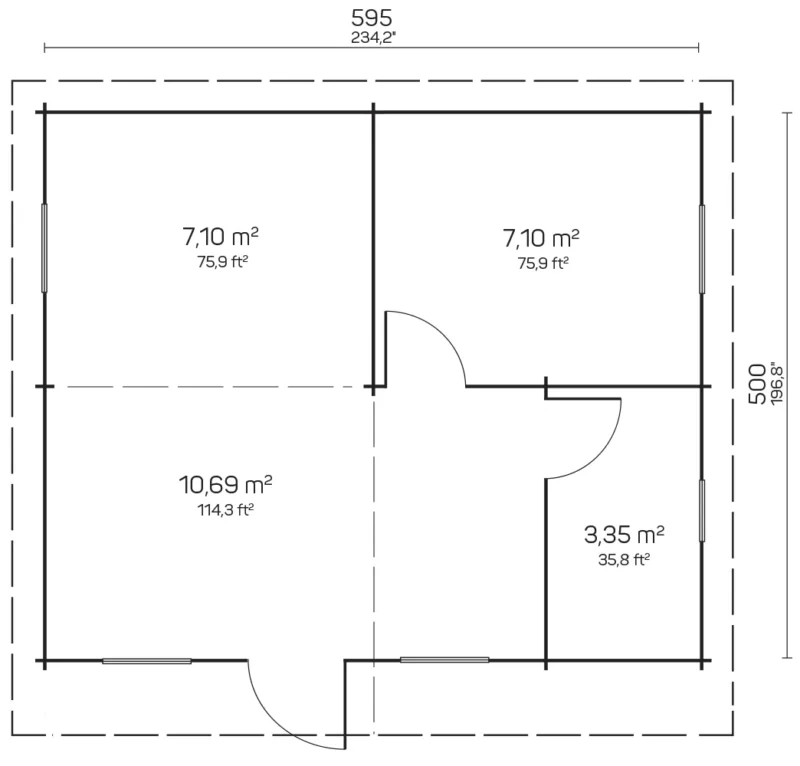
Drvena kućica Gabriel je pouzdano i estetski privlačno rešenje za sve koji žele dodatni prostor u svom dvorištu. Bez obzira da li vam je potrebna kućica za alat, hobi radionicu, ili mirno mesto za odmor, Gabriel kombinuje praktičnost sa prirodnim šarmom drveta.
Izrađena je od 100% visokokvalitetne nordijske smrče, poznate po svojoj izdržljivosti, otpornosti na vremenske uslove i prijatnoj teksturi. Zidovi debljine 28 mm pružaju stabilnost i osnovnu termoizolaciju, čineći ovu kućicu funkcionalnom tokom većeg dela godine.
Stakleni prozori i dvostruka vrata izrađeni su od posebno sušenog lameliranog drveta (8–12% vlage), sa uključenim okovom. Prozori su nagibni, što omogućava lako provetravanje i prijatnu atmosferu u unutrašnjosti.
Pod i plafon su napravljeni od profilisanih dasaka debljine 18 mm, pružajući čvrstu i toplu osnovu, dok autoklavirani temeljni nosači obezbeđuju dugotrajnost konstrukcije i zaštitu od vlage.
Za dodatnu sigurnost i otpornost, komplet uključuje olučne letvice, kao i sav potreban pribor za montažu – šrafove, eksere i detaljno uputstvo, što omogućava brzo i jednostavno sastavljanje bez angažovanja profesionalaca.
Drvena kućica Gabriel je idealan izbor za svakoga ko želi praktičan i estetski dodatak svom dvorištu – prirodan prostor koji se lako prilagođava vašim potrebama.




























