Drvena finska sauna Piha-Tuuri 13 je savršen spoj masivne konstrukcije, prirodnih materijala i visokog kvaliteta izrade. Idealan je izbor za sve koji žele da svoj dom ili vikendicu obogate pravim finskim wellness ugođajem – bez kompromisa u estetici, komforu i dugovečnosti.
- 100% nordijska smreka – prirodan materijal poznat po čvrstini, toplotnoj izolaciji i dugotrajnosti
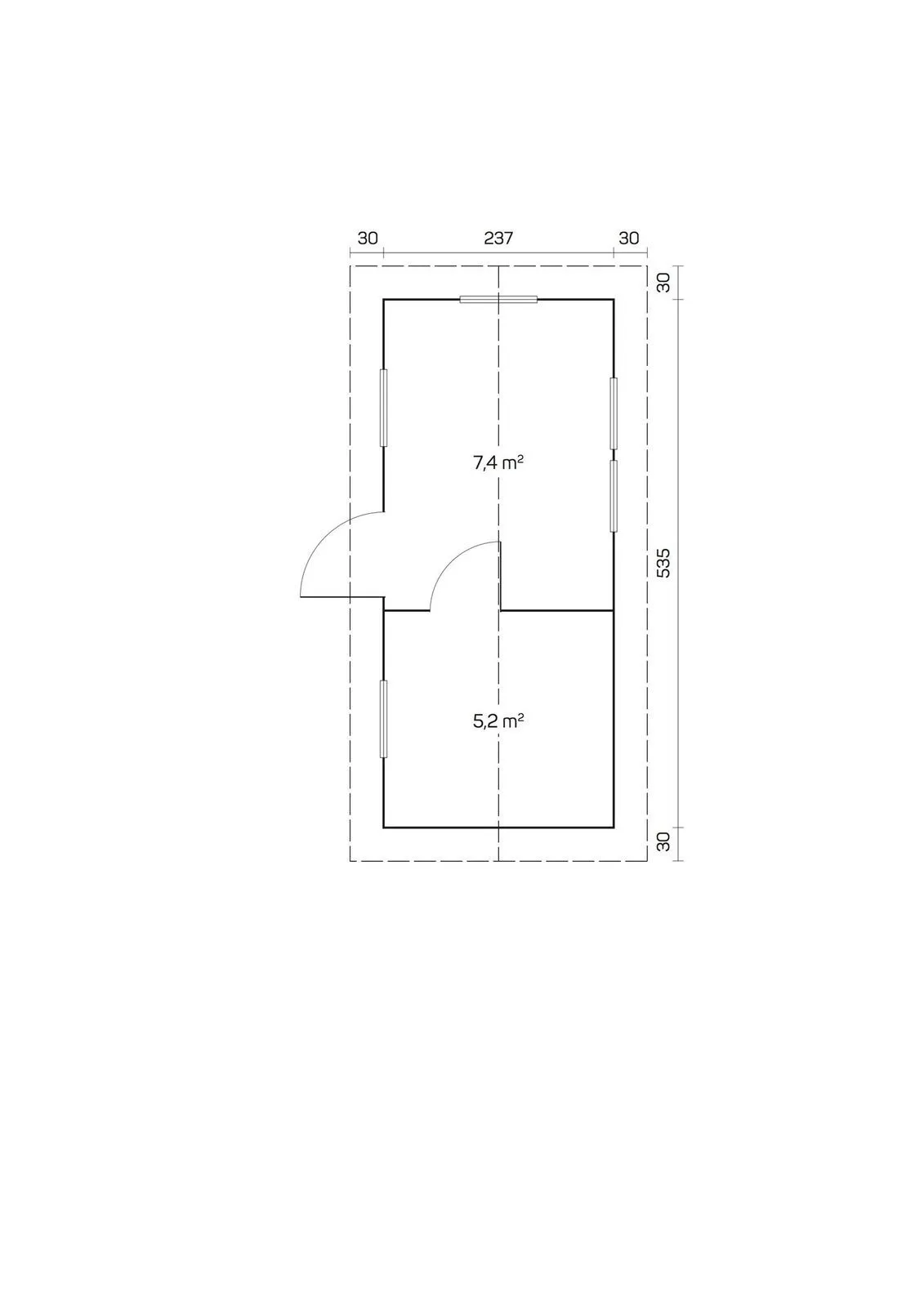
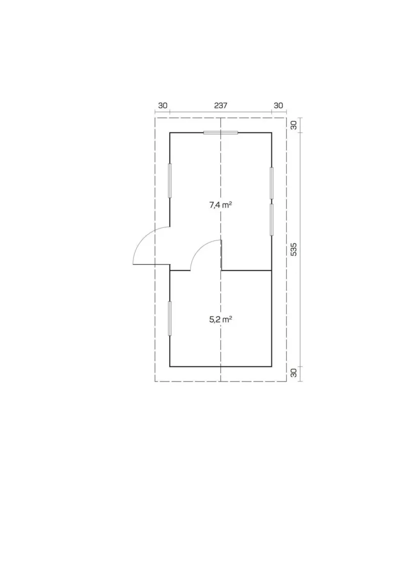
- Zidovi debljine 70 mm – garantuju odličnu termoefikasnost i stabilnu strukturu
- Vrata i prozori od lameliranog drveta sa 8–12% vlage – suvi i stabilni elementi za dužu upotrebu
- Nemački tip ISO prozora sa zaptivkama i okovima – energetska efikasnost i jednostavno otvaranje
- INOX prag – otporan na habanje i vlagu, praktičan za svakodnevno korišćenje
- Vrata parne sobe od lameliranog drveta sa kaljenim staklom – sigurno, moderno i svetlo
- Komplet klupa od lipe sa naslonom i dodatnom stepen klupom – udobnost i funkcionalnost u svakom detalju
- Impregnirane noseće grede – postojan temelj saune, otporan na vlagu i vreme
- Pod od profilisane daske debljine 28 mm – masivan, stabilan i jednostavan za održavanje
- Odvodni kanal u podu parne sobe – za higijenu i efikasno odvođenje vode
- Plafon od profilisane daske – prirodan ambijent i dodatna izolacija
- Kompletan set pribora: navojne šipke, šrafovi, ekseri i sve što je potrebno za montažu
- Detaljna uputstva i tehnički crteži – jednostavna i efikasna montaža, čak i bez profesionalne pomoći
Sauna Piha-Tuuri 13 je više od proizvoda – to je kompletno iskustvo koje unosi zdravlje, mir i toplinu u vašu svakodnevicu. Savršena za dvorišta, planinske kuće i wellness kutke.
























































