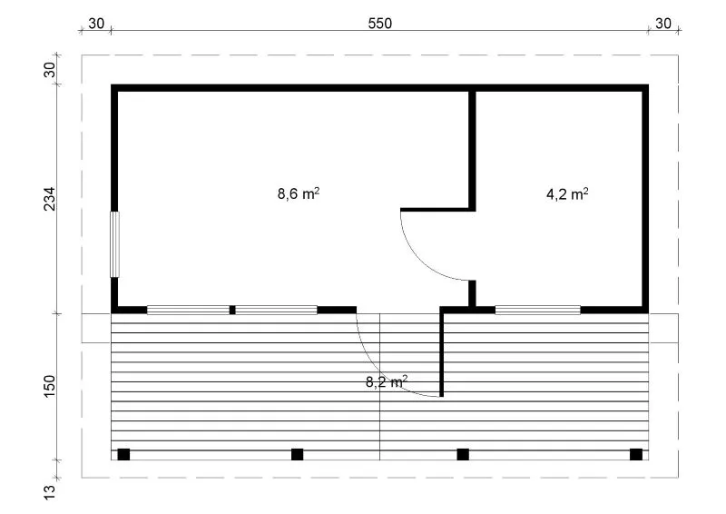
Drvena finska sauna Pihasauna 19 je pravi izbor za one koji traže prostranost, trajnost i prijatnu toplotu tokom cele godine. Zahvaljujući svojoj robustnoj izradi od 100% nordijske smreke i pametnom dizajnu sa duplim krovnim i plafonskim pločama, ova sauna je spremna za dodatnu termoizolaciju do 50 mm (materijal nije uključen u cenu), čineći je energetski efikasnom i pogodnom za sve vremenske uslove.
- Kvalitetna nordijska smreka – poznata po svojoj otpornosti i izolacionim svojstvima
- Zidovi debljine 70 mm – obezbeđuju stabilnost i toplotnu izolaciju
- Vrata i prozori izrađeni od ekstra suvog lameliranog drveta (8–12%)
- ISO stakleni paketi na nemačkim kip i okret prozorima – sa okovima i zaptivkama
- Ulazna vrata sa staklenom ispunom – moderna i funkcionalna
- Vrata parne sobe od lameliranog drveta sa kaljenim staklom – sigurnost i estetika
- Klupe od lipe sa naslonom i stepen klupom – udobne i izdržljive na visoke temperature
- Temeljne grede impregnirane u autoklavu – dugotrajna zaštita od vlage
- Pod od profilisane daske (28 mm) – čvrst, prirodan i jednostavan za održavanje
- Odvodni kanal u parnoj sobi – za brzo sušenje i čistoću
- Dvoslojni plafon (18+18 mm) i dupli krov – spremni za dodavanje izolacije
- Kompletan set za montažu – navojne šipke, šrafovi, ekseri i svi pričvršćivači
- Detaljna dokumentacija – crteži i uputstva za jednostavnu i brzu montažu
Pihasauna 19 je idealna za porodične vikendice, planinske kuće ili dvorišta – unosi duh finske tradicije, udobnost i prirodan balans tela i uma.






















































