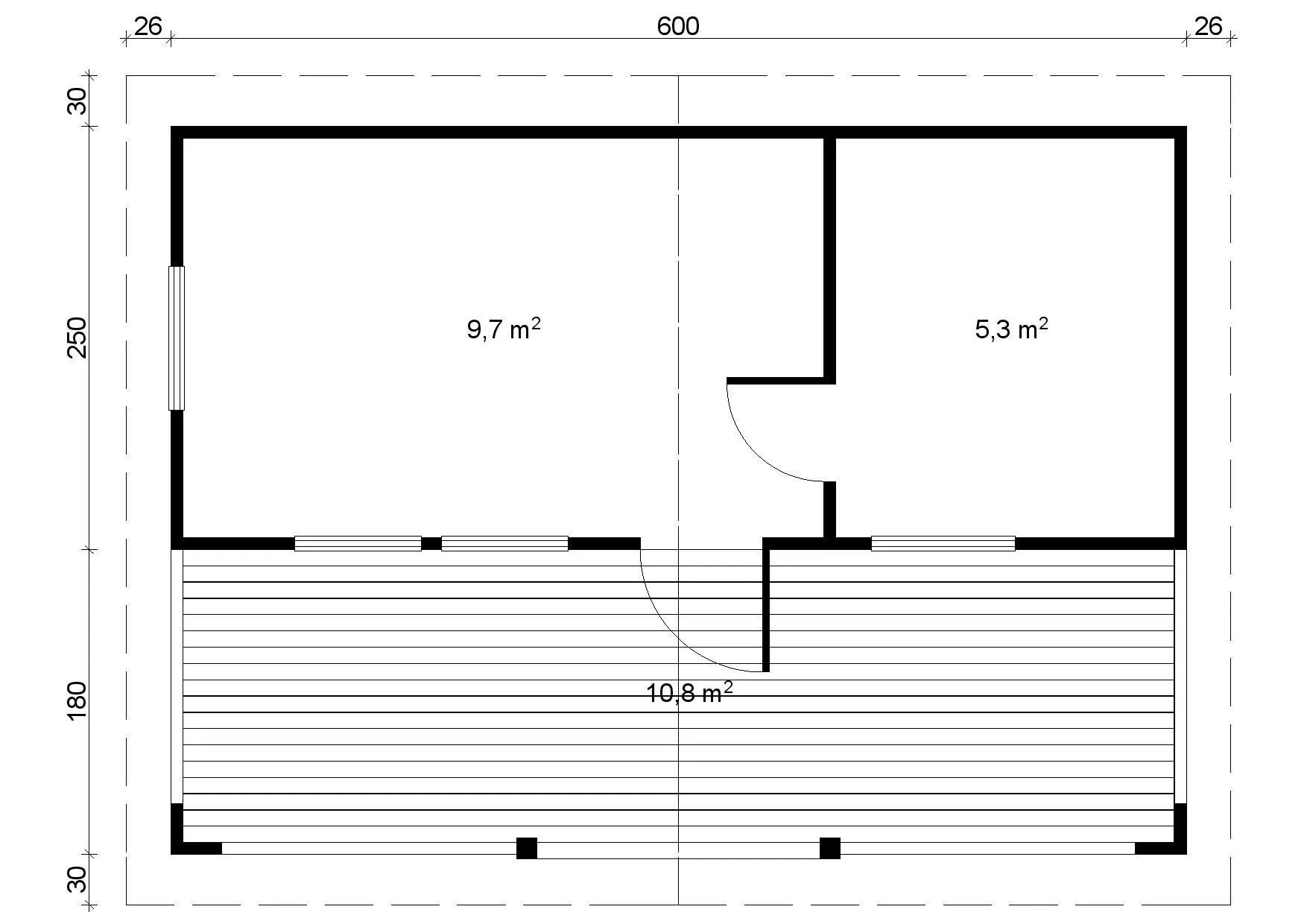
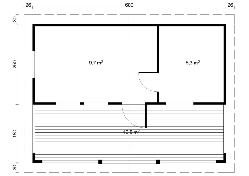
Drvena finska sauna Piha-Tuuri 25 je idealan izbor za one koji žele kompletno spa iskustvo u sopstvenom domu, vikendici ili dvorištu. Dizajnirana za maksimalan komfor, izdržljivost i estetiku, ova sauna pruža autentičan doživljaj sauniranja uz vrhunske materijale i kvalitet izrade.
- 100% nordijska smreka – prirodno otporna i dugotrajna, sa odličnim termoizolacionim svojstvima
- Zidovi debljine 70 mm – masivna konstrukcija koja obezbeđuje efikasno zadržavanje toplote
- Vrata i prozori od lameliranog drveta (vlaga 8–12%) sa ISO staklom i čeličnim okovima
- Nemački tip prozora sa kip i otvaranjem, zaptivkama i punim setom okova
- INOX prag – otporan na vlagu i habanje, idealan za dugoročnu upotrebu
- Parna vrata od lameliranog drveta sa kaljenim staklom – bezbednost i sofisticiran izgled
- Set klupa od lipe sa naslonom i stepen klupom – funkcionalan raspored za potpuni komfor
- Temeljne grede impregnirane u autoklavu – stabilnost i otpornost na vlagu
- Pod od profilisane daske 28 mm – čvrsta i estetski dopadljiva osnova
- Odvodni kanal u parnoj sobi – za lako i efikasno održavanje čistoće
- Plafon od profilisane daske – prirodan izgled i dodatna izolacija
- Kompletan montažni pribor – uključuje navojne šipke, ekseri, šrafovi i sve potrebne komponente
- Detaljna tehnička dokumentacija – crteži i uputstva za brzu i jednostavnu montažu
Sa Piha-Tuuri 25 unosite u svoj život prostor za relaksaciju, zdravlje i kvalitetno vreme sa porodicom ili prijateljima – bez kompromisa u kvalitetu ili stilu.




















































