Drvena sauna Sami
12.800 €
Drvena sauna Sami – luksuzna sa predsobljem i terasom
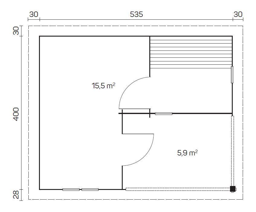
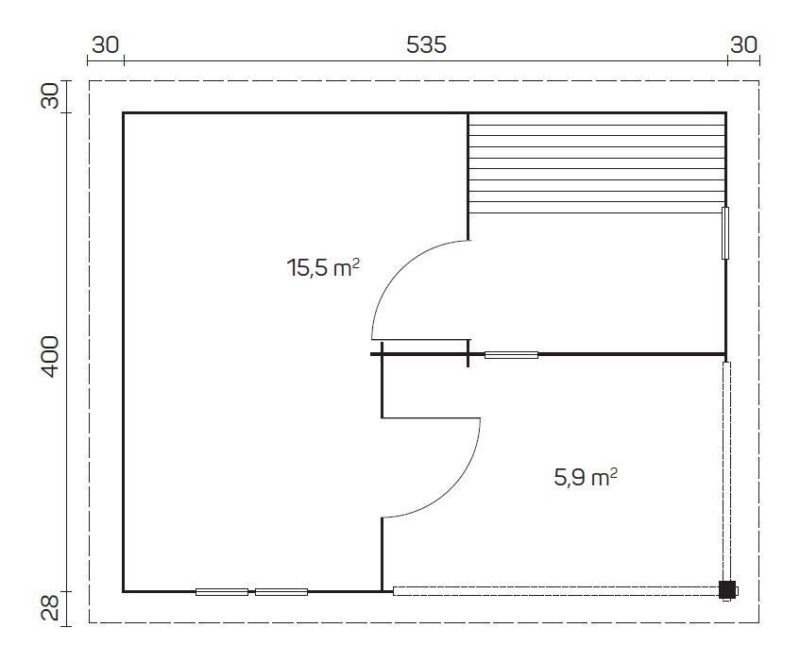
Sauna Sami je velika spoljašnja drvena sauna sa debelim zidovima (70 mm) i dodatnim predsobljem i terasom – idealna za porodično korišćenje u dvorištu ili vikendici.
Tehničke karakteristike:
- Spoljašnje dimenzije: 555 × 420 cm
- Zidovi: 70 mm nordijska smreka
- Površina poda: cca 21,4 m²
- Zapremina: cca 48 m³
- Visina bočnih zidova: 228 cm
- Visina do vrha krova (haronja): 281 cm
- Dvostruke ISO staklene prozore i vrata za bolju izolaciju
- Debljina podnih dasaka: 28 mm (nije uključena podnica)
Komplet sadrži drvene zidne panele, prozore, vrata, podne grede, klupe i montažni pribor sa uputstvom
Prednosti: izuzetna izolacija zahvaljujući debelim zidovima, prostrano predsoblje, dodatna terasa – savršeno za udoban i estetski sauniranje tokom cele godine.
Napomena: Krovna folija ili šindra nisu uključene. Grejanje (peć), podnica i montaža nisu uključeni u cenu – potrebno je planirati i organizovati ugradnju prema propisima.
Pitajte nas online
Related products
Drvena sauna Tervo
Tehničke karakteristike
Dimenzije i zidovi
- Spoljašnje dimenzije: 421 x 471 cm
- Dužina zidnih panela: 441 x 491 cm
- Debljina zidnih panela: 70 mm
- Visina bočnog zida: 234 cm
Krov
- Visina do vrha krova: 290 cm
- Površina krova: 29,2 ㎡
- Nagib krova: 17°
- Debljina krovnih dasaka: 18 mm
- Previs natkrivene terase: 227 cm
Pod
- Površina poda: 20 ㎡
- Debljina podnih dasaka: 28 mm
Ostalo
- Prozor sa dvostrukim staklom: 1 x 765 x 990 mm / 1 x 1530 x 990 mm
- Vrata saune: 840 x 1955 mm
- Ulazna vrata od lepljenog drveta sa staklom: 840 x 1955 mm
- Ukupan zapreminski obim objekta: 28 ㎥
Drvena sauna Otto sa terasom
Drvena sauna Otto sa terasom – prostrana i kvalitetna
Sauna Otto je luksuzni model spoljašnje drvene saune sa debelim 70 mm zidovima i prostranom terasom. Napravljena je od visokokvalitetne nordijske smreke, dizajnirana da pruži potpuni komfor i dugotrajnost.
Tehničke karakteristike:
- Spoljašnje dimenzije: 505 × 483 cm
- Unutrašnje dimenzije: 485 × 463 cm
- Debljina zidova: 70 mm (blok-daska, dupla utor-nasad)
- Visina bočnih zidova: 234 cm
- Visina do vrha krova: 298 cm
- Površina poda: oko 23,4 m²
- Zapremina: 31,3 m³
- Debljina podnih dasaka: 28 mm
- Krovne daske: 18 mm, nagib 15–19°
- Površina krova: oko 30,7 m²
- Prozori: 2 × 765 × 990 mm + 1 × 1539 × 990 mm (ISO stakla)
- Vrata: 1 × 840 × 1955 mm (ISO staklo); sauna vrata 840 × 1955 mm
U kompletu su drveni paneli, podna konstrukcija, prozori, vrata, klupe od jasena, pričvrsni materijal i detaljna uputstva za montažu.
Prednosti: prostrana unutrašnjost i terasa, odlična toplotna izolacija, robusna konstrukcija – idealno za uživanje tokom cele godine.
Napomena: Krovna folija/šindra, peć i montaža nisu uključeni u cenu. Grejanje (npr. peć 8–9 kW) mora se instalirati po propisima.
Drvena finska sauna Pihasauna 19
Karakteristike
Zidovi
- Spoljašnje dimenzije zida: 550 x 234 cm
- Dužina zidne daske: 570 x 254 cm
- Debljina zidne daske: 70 mm
- Visina bočnog zida: 220 cm / 264 cm
Krov
- Visina slemena krova: 289 cm / 264 cm
- Površina krova: 28 ㎥
- Nagib krova: 12 ㎥ / 10 ㎥
- Daska za krov: 18 mm + 18 mm
- Nadstrešnica (izbočina): 150 cm
Pod
- Površina poda: 13 ㎡
- Daska za pod: 28 mm
Ostalo
- Prozori sa termopan staklom: 1 x 765 x 990 mm / 1 x 965 x 790 mm / 2 x 865 x 1210 mm
- Vrata parne sobe: 690 x 1955 mm
- Vrata od lepljenog drveta sa termopan staklom: 1 x 840 x 1955 mm
- Zapremina kuće: cca 13 ㎥
- Impregnirane temeljne grede: 40 x 120 mm
Informacije o pakovanju
- Dimenzije paketa: 580 x 120 x 66 cm / 570 x 120 x 54 cm
- Težina paketa: 1 x 1500 kg / 1 x 1200 kg
Napomena: Krovni materijal, peć i montaža nisu uključeni u cenu.
Drvena sauna Joonas
Drvena sauna Joonas – kompaktna i kvalitetna za vaš vrt
Sauna Joonas je savršeno rešenje za manje dvorište ili vikendicu. Izgrađena je od visokokvalitetne jelovine sa debljinom zidova od 70 mm, što osigurava odličnu toplotnu izolaciju i trajnost.
Tehničke karakteristike:
- Spoljašnje dimenzije: 300 × 400 cm
- Unutrašnje dimenzije (sauna + predprostor): 280 × 380 cm
- Debljina zidova: 70 mm
- Visina bočnih zidova: 210 cm
- Visina do krova (haronja): 250–257 cm
- Površina poda: ≈ 10,7 m²
- Zapremina: ≈ 23,4 m³
- Površina krova: ≈ 17 m²
- Nagib krova: 16–17°
- Debljina podnih dasaka: 28 mm
- Dvoslojna isolaciona stakla: prozor 765×990 mm i vrata 840×1955 mm
- Obrada i podkonstrukcija: impregnirana drvena konstrukcija 45 × 70 mm, sa vijkom za fiksaciju zidova
Set uključuje kompletne drvene panele, prozore, vrata, podne daske, pribor za montažu i uputstvo. Nije uključena peć i krovna pokrivenost – one se biraju po želji i moraju biti u skladu sa građevinskim propisima.
Prednosti: kompaktan projekat, lako se uklapa u manje vanjske prostore, izuzetna toplotna izolacija i kvalitetna drvena izrada – idealno za privatnu upotrebu tokom cele godine.
Napomena: Krovna folija/šindra nije uključena. Grejanje potrebno planirati (npr. peć 8–9 kW) i montirati prema propisima.
Drvena finska sauna Piha-Tuuri 13
Karakteristike
Zidovi
- Spoljašnje dimenzije zida: 237 x 535 cm
- Dužina zidne daske: 257 x 555 cm
- Debljina zidne daske: 70 mm
- Visina bočnog zida: 217 cm
Krov
- Visina slemena krova: 264 cm
- Površina krova: 18 ㎥
- Nagib krova: 19°
- Daska za krov: 18 mm
- Nadstrešnica (izbočina): 30 cm
Pod
- Površina poda: 10 ㎡
- Daska za pod: 28 mm
Ostalo
- Prozori sa termopan staklom: 3 x 765 x 990 mm / 1 x 1539 x 990 mm
- Vrata parne sobe: 690 x 1955 mm
- Vrata od lepljenog drveta sa termopan staklom: 840 x 1955 mm
- Zapremina kuće: cca 27 ㎥
- Impregnirane temeljne grede: 60 x 70 mm
Informacije o pakovanju
- Dimenzije paketa: 600 x 120 x 70 cm / 310 x 120 x 60 cm
- Težina paketa: cca 2330 kg
Napomena: Krovni materijal, peć i montaža nisu uključeni u cenu.
Drvena sauna Kalevi
Drvena sauna Kalevi sa terasom – vrhunska relaksacija napolju
Sauna Kalevi dizajnirana je kao idealan dodatak vašem dvorištu ili vikendici. Debljina zidova 70 mm pruža odličnu toplotnu izolaciju i dugotrajnost. Opremljena je prostranom unutrašnjom saunom za uživanje i natkrivenom terasom za odmor, čime se kombinuju zdravlje i prirodni komfor.
Tehničke karakteristike:
- Spoljašnje dimenzije: 380 × 440 cm
- Zidovi: 70 mm debljina (nordijska jelka)
- Unutrašnje dimenzije: 360 × 420 cm
- Visina bočnih zidova: 223 cm
- Visina kućnog krova (do haronje): 286 cm
- Površina krova: 19,3 m²
- Nagib krova: 17°
- Predulaz (terasni krov): 150 cm
- Površina poda: 15,1 m²
- Debljina podnih dasaka: 28 mm
- Prozori: 2 × 765 × 990 mm (duplo staklo)
- Vrata: lepljeno drvo sa staklom (690 × 1955 mm) + dodatna ulazna vrata (840 × 1955 mm)
- Temeljne grede: impregnirano drvo 45 × 70 mm
U cenu su uključeni grede, podne daske, prozori, vrata, metalni prag, ležajni set od topole, montažni pribor i detaljna uputstva za sastavljanje
Prednost: moderna drvena konstrukcija, izolovana >70 mm, sa kućicom i natkrivenom terasom – sve što je potrebno za potpunu privatnost i komfor tokom cele godine.
Napomena: Krovna folija/šindra nije uključena. Grejanje potrebno planirati (npr. peć 8–9 kW) i montirati prema propisima.
Drvena finska sauna Piha-Tuuri 11
Karakteristike
Zidovi
- Spoljašnje dimenzije zida: 237 x 441 cm
- Dužina zidne daske: 257 x 461 cm
- Debljina zidne daske: 70 mm
- Visina bočnog zida: 217 cm
Krov
- Visina slemena krova: 264 cm
- Površina krova: 16 ㎥
- Nagib krova: 19°
- Daska za krov: 18 mm + 18 mm
- Nadstrešnica (izbočina): 30 cm
Pod
- Površina poda: 10 ㎡
- Daska za pod: 28 mm
Ostalo
- Prozori sa termopan staklom: 3 x 765 x 990 mm
- Vrata parne sobe: 690 x 1955 mm
- Vrata od lepljenog drveta sa termopan staklom: 840 x 1955 cm
- Zapremina kuće: cca 23 ㎥
- Impregnirane temeljne grede: 60 x 70 mm
Informacije o pakovanju
- Dimenzije paketa: 600 x 120 x 90 cm
- Težina paketa: cca 2100 kg
Napomena: Krovni materijal, peć i montaža nisu uključeni u cenu.
Drvena finska sauna Piha-Tuuri 15
Karakteristike
Zidovi
- Spoljašnje dimenzije zida: 450 x 214 cm
- Dužina zidne daske: 470 x 234 cm
- Debljina zidne daske: 70 mm
- Visina bočnog zida: 216 cm
Krov
- Visina slemena krova: 270 cm
- Površina krova: 17 ㎥
- Nagib krova: 19 ㎥
- Daska za krov: 18 mm + 18 mm
- Nadstrešnica (izbočina): 70 cm
Pod
- Površina poda: 10 ㎡
- Daska za pod: 28 mm
Ostalo
- Prozori sa termopan staklom: 1 x 965 x 790 mm / 2 x 765 x 990 mm
- Vrata parne sobe: 690 x 1955 mm
- Vrata od lepljenog drveta sa termopan staklom: 1 x 840 x 1955 mm
- Zapremina kuće: cca 20 ㎥
- Impregnirane temeljne grede: 40 x 120 mm
Informacije o pakovanju
- Dimenzije paketa: 1 x 520 x 120 x 53 cm / 1 x 470 x 120 x 65 cm
- Težina paketa: 1 x 1090 kg / 1 x 1200 kg
Napomena: Krovni materijal, peć i montaža nisu uključeni u cenu.
Drvena finska sauna Tahko
Karakteristike
Zidovi
- Spoljašnje dimenzije zida: 450 x 214 cm
- Dužina zidne daske: 470 x 234 cm
- Debljina zidne daske: 70 mm
- Visina bočnog zida: 220 cm / 264 cm
Krov
- Visina slemena krova: 291 cm / 277 cm
- Površina krova: 23 ㎥
- Nagib krova: 12 ㎥ / 10 ㎥
- Daska za krov: 18 mm
- Nadstrešnica (izbočina): 150 cm
Pod
- Površina poda: 10 ㎡
- Daska za pod: 28 mm
Ostalo
- Prozori sa termopan staklom: 1 x 965 x 790 mm / 1 x 1530 x 1890 mm
- Vrata parne sobe: 690 x 1955 mm
- Vrata od lepljenog drveta sa termopan staklom: 1 x 840 x 1955 mm
- Zapremina kuće: cca 24 ㎥
- Impregnirane temeljne grede: 40 x 120 mm
Informacije o pakovanju
- Dimenzije paketa: 520 x 120 x 52 cm / 560 x 120 x 60 cm
- Težina paketa: 1 x 1500 kg / 1 x 1200 kg
Napomena: Krovni materijal, peć i montaža nisu uključeni u cenu.
Drvena finska sauna Piha-Tuuri 19
Karakteristike
Zidovi
- Spoljašnje dimenzije zida: 550 x 234 cm
- Dužina zidne daske: 570 x 254 cm
- Debljina zidne daske: 70 mm
- Visina bočnog zida: 215 cm
Krov
- Visina slemena krova: 270 cm
- Površina krova: 20 ㎥
- Nagib krova: 12 ㎥
- Daska za krov: 18 mm + 18 mm
- Nadstrešnica (izbočina): 60 cm
Pod
- Površina poda: 13 ㎡
- Daska za pod: 28 mm
Ostalo
- Prozori sa termopan staklom: 2 x 965 x 790 mm / 2 x 856 x 1210 mm
- Vrata parne sobe: 690 x 1955 mm
- Vrata od lepljenog drveta sa termopan staklom: 1 x 840 x 1955 mm
- Zapremina kuće: cca 27 ㎥
- Impregnirane temeljne grede: 40 x 120 mm
Informacije o pakovanju
- Dimenzije paketa: 600 x 120 x 75 cm / 600 x 120 x 50 cm
- Težina paketa: 1750 kg / 1180 kg
Napomena: Krovni materijal, peć i montaža nisu uključeni u cenu.
Drvena finska sauna Piha-Tuuri 25
Karakteristike
Zidovi
- Spoljašnje dimenzije zida: 600 x 250 cm
- Dužina zidne daske: 620 x 270 cm
- Debljina zidne daske: 70 mm
- Visina bočnog zida: 203 cm
Krov
- Visina slemena krova: 259 cm
- Površina krova: 33 ㎥
- Nagib krova: 11 ㎥
- Daska za krov: 18 mm + 18 mm
- Nadstrešnica (izbočina): 180 cm
Pod
- Površina poda: 15 ㎡
- Daska za pod: 28 mm
Ostalo
- Prozori sa termopan staklom: 2 x 965 x 790 mm / 2 x 856 x 1210 mm
- Vrata parne sobe: 690 x 1955 mm
- Vrata od lepljenog drveta sa termopan staklom: 1 x 840 x 1955 mm
- Zapremina kuće: cca 32 ㎥
- Impregnirane temeljne grede: 40 x 120 mm
Informacije o pakovanju
- Dimenzije paketa: 600 x 120 x 80 cm / 600 x 120 x 60 cm
- Težina paketa: 1 x 1900 kg / 1 x 1400 kg
Napomena: Krovni materijal, peć i montaža nisu uključeni u cenu.
Drvena finska sauna Piha-Tuuri 10
Karakteristike
Zidovi
- Spoljašnje dimenzije zida: 214 x 480 cm
- Dužina zidne daske: 234 x 500 cm
- Debljina zidne daske: 70 mm
- Visina bočnog zida: 217 cm
Krov
- Visina slemena krova: 250 cm
- Površina krova: 15,7 ㎥
- Nagib krova: 20°
- Daska za krov: 18 mm + 18 mm
- Nadstrešnica (izbočina): 100 cm
Pod
- Površina poda: 10 ㎡ + 2,2 ㎡
- Daska za pod: 28 mm
Ostalo
- Prozori sa termopan staklom: 2 x 765 x 990 mm ISO
- Vrata parne sobe: 690 x 1955 mm
- Vrata od lepljenog drveta sa termopan staklom: 1 x 840 x 1955 mm
- Zapremina kuće: cca 18 ㎥
- Impregnirane temeljne grede: 45 x 145 mm
Informacije o pakovanju
- Dimenzije paketa: 540 x 120 x 89 cm
- Težina paketa: cca 1900 kg
Napomena: Krovni materijal, peć i montaža nisu uključeni u cenu.
Drvena finska sauna Tommi
Karakteristike
Zidovi
- Spoljašnje dimenzije zida: 480 x 540 cm
- Dužina zidne daske: 500 x 560 cm
- Debljina zidne daske: 70 mm
- Visina bočnog zida: 223 cm
Krov
- Visina slemena krova: 297 cm
- Površina krova: 33,7 ㎥
- Nagib krova: 17°
- Daska za krov: 18 mm
- Nadstrešnica (izbočina): 177 cm
Pod
- Površina poda: 25,9 ㎡
- Daska za pod: 28 mm
Ostalo
- Prozori sa termopan staklom: 2 x 530 x 530 mm / 2 x 765 x 990 mm
- Vrata parne sobe: 690 x 1955 mm
- Vrata od lepljenog drveta sa termopan staklom: 2 x 840 x 1955 mm
- Zapremina kuće: cca 49,7 ㎥
- Impregnirane temeljne grede: 60 x 70 mm
Informacije o pakovanju
- Dimenzije paketa: 600 x 120 x 80 cm / 580 x 120 x 60 cm
- Težina paketa: cca 3100 kg
Napomena: Krovni materijal, peć i montaža nisu uključeni u cenu.
Drvena sauna Niklas sa terasom
Drvena sauna Niklas sa terasom – komforna i funkcionalna
Sauna Niklas sa terasom je idealno rešenje za manje podne prostore, kombinujući praktičnost i udobnost. Zidovi debljine 40 mm od nordijske smreke pružaju solidnu izolaciju, a ugrađena terasa i klupa omogućavaju relaksaciju pre i posle sauniranja.
Tehničke karakteristike:
- Spoljašnje dimenzije: 200 × 200 cm
- Dužina zidnih panela: 220 × 220 cm
- Debljina zidova: 40 mm nordijska smreka
- Visina bočnih zidova: 217 cm
- Visina do vrha krova: 257 cm :
- Površina poda: 6,2 m²
- Debljina podnih dasaka: 18 mm
- Krovna konstrukcija: 18 mm daske, nagib 22°
- Površina krova: 9 m³
- Natkrivena terasa: 110 cm przvis
- Prozor: 765 × 990 mm (samo staklo)
- Vrata: unutrašnja 840 × 1890 mm (samo staklo), vrata saune 690 × 1955 mm
- Zapremina objekta: približno 8,6 m³
- Podkonstrukcija: impregnati grede 45 × 70 mm
U kompletu su drvena konstrukcija, klupe i naslon za leđa, podna konstrukcija, prozor i vrata, pričvrsni materijal i detaljna uputstva za montažu
Prednosti: kompaktna, pogodna za manje dvorišne prostore, sa terasom i osnovnom izolacijom zidova – odlična za privatnu upotrebu tokom cele godine.
Napomena: Krovna folija ili šindra nije uključena. Grejanje (peć), kao i montaža, nisu uključeni u cenu – potrebno je organizovati i instalirati prema propisima.
Drvena finska sauna Pihasauna 26
Karakteristike
Zidovi
- Spoljašnje dimenzije zida: 600 x 260 cm
- Dužina zidne daske: 620 x 280 cm
- Debljina zidne daske: 70 mm
- Visina bočnog zida: 220 cm / 264 cm
Krov
- Visina slemena krova: 288 cm / 274 cm
- Površina krova: 32 ㎥
- Nagib krova: 12 ㎥ / 10 ㎥
- Daska za krov: 18 mm + 18 mm
- Nadstrešnica (izbočina): 150 cm
Pod
- Površina poda: 16 ㎡
- Daska za pod: 28 mm
Ostalo
- Prozori sa termopan staklom: 1 x 765 x 990 mm / 1 x 965 x 790 mm / 2 x 865 x 1210 mm
- Vrata parne sobe: 690 x 1955 mm
- Vrata od lepljenog drveta sa termopan staklom: 1 x 840 x 1955 mm
- Zapremina kuće: cca 17 ㎥
- Impregnirane temeljne grede: 40 x 120 mm
Informacije o pakovanju
- Dimenzije paketa: 420 x 120 x 73 cm / 600 x 120 x 67 cm
- Težina paketa: 1 x 1590 kg / 1 x 1200 kg
Napomena: Krovni materijal, peć i montaža nisu uključeni u cenu.
Drvena sauna Hannu sa terasom
Drvena sauna Hannu sa predsobljem i terasom – elegantno & funkcionalno
Sauna Hannu je dimenzija 380 × 200 cm sa dodatnih 110 cm terase – ukupno 11,8 m² unutrašnje površine, izrađena od nordijske smreke i dizajnirana da pruži savršenu kombinaciju komfora, estetike i funkcionalnosti za dvorište ili vikendicu.
Tehničke karakteristike:
- Dužina/zidovi: 380 × 200 + 110 cm (terasa)
- Debljina zidova: 40 mm nordijska smreka
- Visina bočnih zidova: 217 cm
- Visina do vrha krova: 268 cm
- Površina poda: 11,8 m²
- Površina krova: 14,8 ㎡
- Nagib krova: 15°
- Debljina krovnih dasaka: 18 mm
- Natkrivena terasa: 110 cm široka
- Površina objekta: oko 17,3 m³
- Pod: 18 mm profilne daske
- Podkonstrukcija: impregnirani grede 45×70 mm
- Prozor: 765×990 mm s dvoslojnim staklom
- Vrata: sauna vrata 690×1955 mm i staklena vrata 840×1890 mm
Komplet uključuje drvene panele, prozore, vrata, klupu, naslon, pod, oluke, pribor za montažu i detaljna uputstva za sastavljanje
Prednosti: funkcionalni prostor za saunu i predsoblje, terasa za relaksaciju, kvalitetna izvedba i estetski izgled – savršeno za celogodišnju privatnu upotrebu.
Napomena: Krovna folija ili šindra nije uključena. Grejanje (peć) nije uključeno – neophodno je planirati instalaciju (npr. peć 8–9 kW) i montirati po propisima. Montaža nije uključena u cenu.
Drvena finska sauna Risto
Karakteristike
Zidovi
- Spoljašnje dimenzije zida: 395 x 651 cm
- Dužina zidne daske: 415 x 671 cm
- Debljina zidne daske: 70 mm
- Visina bočnog zida: 234 cm
Krov
- Visina slemena krova: 298 cm
- Površina krova: 33,5 ㎥
- Nagib krova: 18°
- Daska za krov: 18 mm
- Nadstrešnica (izbočina): 173 cm
Pod
- Površina poda: 25,7 ㎡
- Daska za pod: 28 mm
Ostalo
- Prozori sa termopan staklom: 3 x 765 x 990 mm / 1 x 1530 x 990 mm
- Vrata parne sobe: 690 x 1955 mm
- Vrata od lepljenog drveta sa termopan staklom: 2 x 840 x 1955 mm
- Zapremina kuće: cca 47,9 ㎥
- Impregnirane temeljne grede: 60 x 70 mm
Informacije o pakovanju
- Dimenzije paketa: 600 x 120 x 80 cm / 580 x 120 x 60 cm
- Težina paketa: cca 3100 kg
Napomena: Krovni materijal, peć i montaža nisu uključeni u cenu.
Drvena finska sauna Pekka
Karakteristike
Zidovi
- Spoljašnje dimenzije zida: 425 x 425 cm
- Dužina zidne daske: 445 x 445 cm
- Debljina zidne daske: 70 mm
- Visina bočnog zida: 217 cm
Krov
- Visina slemena krova: 268 cm
- Površina krova: 30,3 ㎥
- Nagib krova: 14°
- Daska za krov: 18 mm
- Nadstrešnica (izbočina): 150 cm
Pod
- Površina poda: 23,9 ㎡
- Daska za pod: 28 mm
Ostalo
- Prozori sa termopan staklom: 1 x 530 x 530 mm / 1 x 765 x 990 mm / 1 x 1530 x 990 mm
- Vrata parne sobe: 690 x 1955 mm
- Vrata od lepljenog drveta sa termopan staklom: 2 x 840 x 1955 mm
- Zapremina kuće: cca 41,5 ㎥
- Impregnirane temeljne grede: 60 x 70 mm
Informacije o pakovanju
- Dimenzije paketa: 495 x 120 x 65 cm / 600 x 120 x 76 cm
- Težina paketa: cca 2890 kg
Napomena: Krovni materijal, peć i montaža nisu uključeni u cenu.
Drvena finska saunaPihasauna 15
Karakteristike
Zidovi
- Spoljašnje dimenzije zida: 450 x 214 cm
- Dužina zidne daske: 470 x 234 cm
- Debljina zidne daske: 70 mm
- Visina bočnog zida: 220 cm / 264 cm
Krov
- Visina slemena krova: 291 cm / 277 cm
- Površina krova: 23 ㎥
- Nagib krova: 12 ㎥ / 10 ㎥
- Daska za krov: 18 mm + 18 mm
- Nadstrešnica (izbočina): 150 cm
Pod
- Površina poda: 10 ㎡
- Daska za pod: 28 mm
Ostalo
- Prozori sa termopan staklom: 1 x 765 x 990 mm / 1 x 965 x 790 mm / 1 x 865 x 1210 mm
- Vrata parne sobe: 690 x 1955 mm
- Vrata od lepljenog drveta sa termopan staklom: 1 x 840 x 1955 mm
- Zapremina kuće: cca 10 ㎥
- Impregnirane temeljne grede: 40 x 120 mm
Informacije o pakovanju
- Dimenzije paketa: 520 x 120 x 52 cm / 560 x 120 x 60 cm
- Težina paketa: 1 x 1500 kg / 1 x 1200 kg
Napomena: Krovni materijal, peć i montaža nisu uključeni u cenu.
Drvena sauna Piha Tuuri 7
Drvena sauna Piha Tuuri 7 – kompaktna i izdržljiva
Piha Tuuri 7 je kompaktna spoljašnja sauna sa zidovima debljine 70 mm, namenjena za male dvorišne prostore ili vikendice. Izrađena od visokokvalitetne nordijske jelovine sa montažnim setom za jednostavnu izgradnju.
Tehničke karakteristike:
- Dužina: 344 cm
- Širina: 234 cm
- Visina: 257 cm
- Zidovi: 70 mm nordijska jelovina
- Površina poda: ≈ 8 m² + terasa ≈ 2,2 m²
- Debljina podnih dasaka: 28 mm
- Krov: dvostruka 18 mm daske, nagib 20 °, površina ≈ 15,7 m²
- Dubina trupca: 70 mm
- Podkonstrukcija: impregnirane grede 45×145 mm
- Prozor: 2 × 765×990 mm dvostruko staklo
- Vrata: 1 × 840×1955 mm dvostruko staklo + sauna vrata 690×1955 mm
- Zapremina: oko 18 m³
Komplet uključuje drvene panele, prozore, vrata, podnu konstrukciju, vijke/kućišta i montažni priručnik
Prednosti: kompaktan dizajn, odlična izolacija i brzo montiranje – idealno za privatnu upotrebu tokom cele godine.
Napomena: Krovna folija/šindra nije uključena. Grejanje (peć) nije uključeno – potrebno je planirati instalaciju (npr. peć 8–9 kW) i montirati po propisima. Montaža nije uključena u cenu.
Drvena finska sauna Piha-Tuuri 12
Karakteristike
Zidovi
- Spoljašnje dimenzije zida: 360 x 214 cm
- Dužina zidne daske: 380 x 234 cm
- Debljina zidne daske: 70 mm
- Visina bočnog zida: 217 cm
Krov
- Visina slemena krova: 270 cm
- Površina krova: 14 ㎥
- Nagib krova: 18 ㎥
- Daska za krov: 18 mm + 18 mm
- Nadstrešnica (izbočina): 70 cm
Pod
- Površina poda: 8 ㎡
- Daska za pod: 28 mm
Ostalo
- Prozori sa termopan staklom: 1 x 770 x 990 mm / 1 x 965 x 790 mm
- Vrata parne sobe: 690 x 1955 mm
- Vrata od lepljenog drveta sa termopan staklom: 1 x 840 x 1955 mm
- Zapremina kuće: cca 15,8 ㎥
- Impregnirane temeljne grede: 40 x 120 mm
Informacije o pakovanju
- Dimenzije paketa: 595 x 120 x 75 cm
- Težina paketa: cca 1760 kg
Napomena: Krovni materijal, peć i montaža nisu uključeni u cenu.
Drvena finska sauna Pihasauna 12
Karakteristike
Zidovi
- Spoljašnje dimenzije zida: 360 x 214 cm
- Dužina zidne daske: 380 x 234 cm
- Debljina zidne daske: 70 mm
- Visina bočnog zida: 220 cm / 264 cm
Krov
- Visina slemena krova: 291 cm / 277 cm
- Površina krova: 19 ㎥
- Nagib krova: 12 ㎥ / 10 ㎥
- Daska za krov: 18 mm + 18 mm
- Nadstrešnica (izbočina): 150 cm
Pod
- Površina poda: 8 ㎡
- Daska za pod: 28 mm
Ostalo
- Prozori sa termopan staklom: 1 x 765 x 990 mm / 1 x 965 x 790 mm
- Vrata parne sobe: 690 x 1955 mm
- Vrata od lepljenog drveta sa termopan staklom: 1 x 840 x 1955 mm
- Zapremina kuće: cca 30 ㎥
- Impregnirane temeljne grede: 40 x 120 mm
Informacije o pakovanju
- Dimenzije paketa: 560 x 120 x 87 cm
- Težina paketa: cca 1900 kg
Napomena: Krovni materijal, peć i montaža nisu uključeni u cenu.
Drvena finska sauna Enio
Karakteristike
Zidovi
- Spoljašnje dimenzije zida: 557 x 307 cm
- Dužina zidne daske: 577 x 327 + 200 cm
- Debljina zidne daske: 70 mm
- Visina bočnog zida: 217 cm
Krov
- Visina slemena krova: 314 cm
- Površina krova: 36,6 ㎥
- Nagib krova: 19°
- Daska za krov: 18 mm
- Nadstrešnica (izbočina): 230 cm
Pod
- Površina poda: 28,3 ㎡
- Daska za pod: 28 mm
Ostalo
- Prozori sa termopan staklom: 2 x 765 x 990 mm / 1 x 1530 x 990 mm
- Vrata parne sobe: 840 x 1955 mm
- Vrata od lepljenog drveta sa termopan staklom: 840 x 1955 mm
- Zapremina kuće: cca 41,6 ㎥
- Impregnirane temeljne grede: 60 x 70 mm
Informacije o pakovanju
- Dimenzije paketa: 600 x 120 x 80 cm i 580 x 120 x 60 cm
- Težina paketa: cca 3100 kg
Napomena: Krovni materijal, peć i montaža nisu uključeni u cenu.
Drvena sauna Villu
Drvena sauna Villu – prostrana sa predsobljem i terasom
Villu je luksuzna spoljašnja drvena sauna sa debelim zidovima (70 mm), predsobljem i natkrivenom terasom. Dimenzije su pažljivo dizajnirane da ponude maksimalan komfor i estetiku u vašem dvorištu ili vikendici.
Tehničke karakteristike:
- Spoljašnje dimenzije: 415 × 565 cm
- Unutrašnje dimenzije: 395 × 545 cm
- Debljina zidova: 70 mm
- Visina bočnih zidova: 234 cm
- Visina do vrha krova (haronja): 298 cm
- Površina poda: oko 21,5 m²
- Zapremina: oko 41,2 m³
- Debljina podnih dasaka: 28 mm
- Krovne daske: 18 mm, nagib krova 18°; površina krova oko 28,5 m²
- Podkonstrukcija: tretirane grede 60 × 70 mm
- Prozori: 4 × 765 × 990 mm dvoslojno staklo
- Vrata: 2 × 840 × 1955 mm dvoslojna staklena vrata + sauna vrata 690 × 1955 mm
U kompletu su drveni paneli, podna konstrukcija, prozori, vrata, klupe od topole, pričvrsni pribor i detaljna uputstva za montažu
Prednosti: prostran predsoblje i terasa, izuzetna izolacija zahvaljujući 70 mm zidovima, robusna nordijska konstrukcija – idealna za komforno sauniranje tokom cele godine.
Napomena: Krovna folija ili šindra nije uključena. Grejanje (peć), kao ni montaža, nisu uključeni u cenu – neophodno je obezbediti i instalirati po važećim propisima.























































