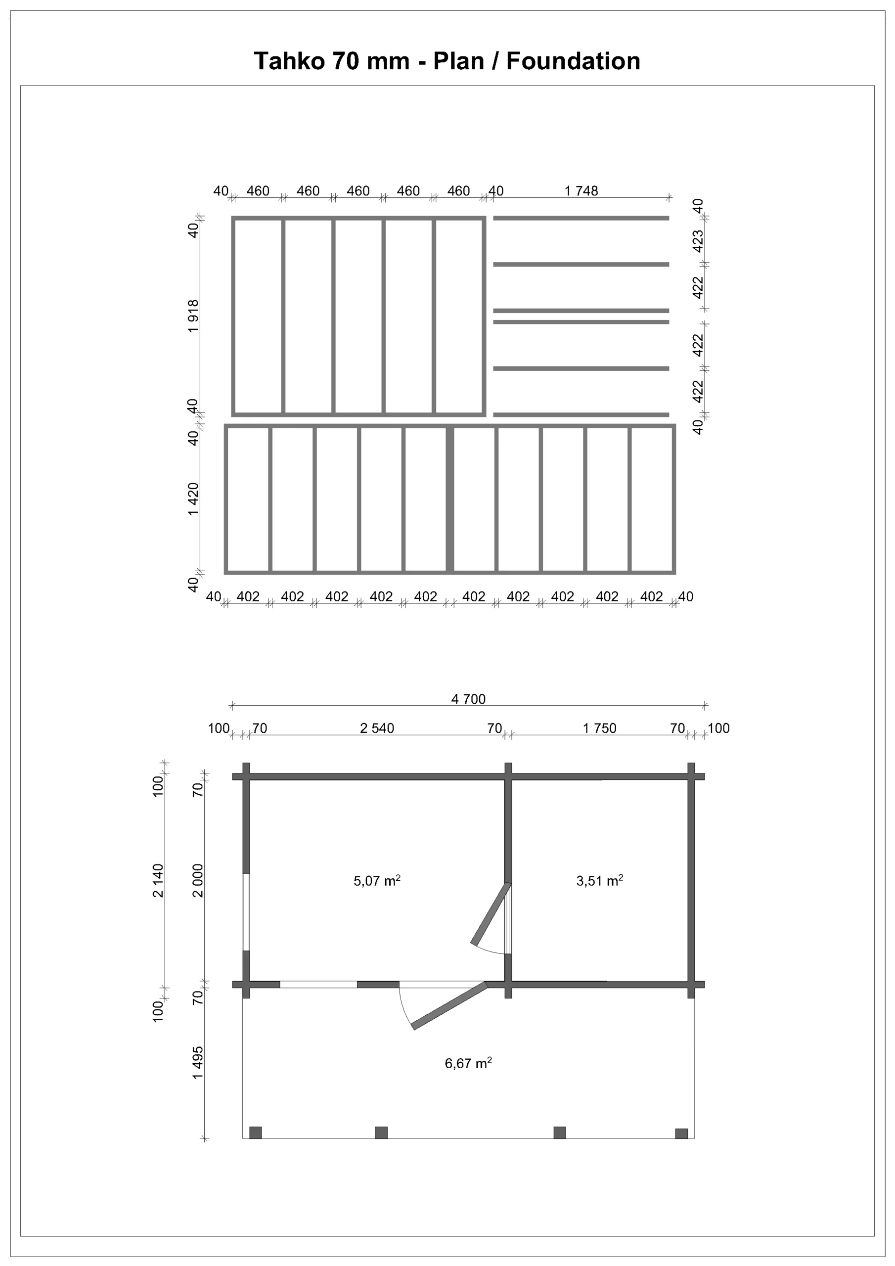
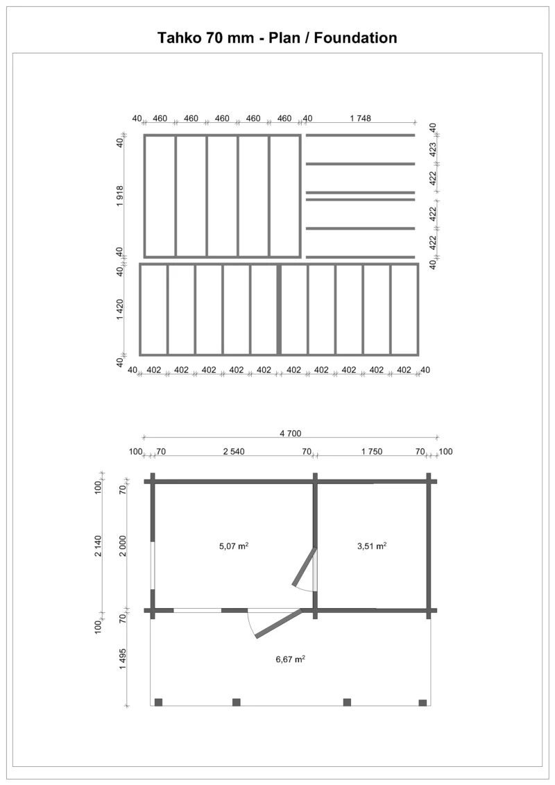
Drvena finska sauna Tahko kombinuje tradicionalnu skandinavsku estetiku sa savremenim standardima izgradnje i udobnosti. Sa zidovima debljine 70 mm i duplim krovnim pločama pripremljenim za izolaciju, ova sauna je idealna za korišćenje tokom cele godine – kako u planinskim predelima, tako i u ravničarskim vrtovima.
- Izrađena od 100% nordijske smreke – prirodan materijal poznat po izdržljivosti i toplotnoj efikasnosti
- Vrata i prozori od ekstra suvog lameliranog drveta (8–12%) – minimalno krivljenje i maksimalna stabilnost
- Stakleni elementi (ISO) u vratima i nemačkim prozorima sa kip/okret mehanizmom – svetlost, izolacija i stil
- Vrata u parnu sobu od lepljenog drveta sa kaljenim staklom – izdržljivost i sigurnost
- Komplet klupa od lipe sa naslonom i stepen klupom – prijatan materijal za sedenje i otpornost na vlagu
- Temeljne grede impregnirane u autoklavu – otpornost na vlagu i štetočine
- Pod od profilisane daske (28 mm) – robustan i prirodan osećaj pod nogama
- Odvodni kanal u parnoj sobi – olakšano održavanje i higijena
- Dupli plafon i krovne ploče omogućavaju ugradnju izolacije do 50 mm (materijal nije uključen)
- Kompletan set za montažu – uključuje navojne šipke, šrafove, eksere i sve potrebne elemente
- Detaljna uputstva i crteži za laku i preciznu montažu
Tahko sauna je vrhunski izbor za svakoga ko traži savršenu kombinaciju prirodnih materijala, promišljenog dizajna i visokog nivoa udobnosti. Uživajte u iskustvu prave finske saune u svom dvorištu!
























































